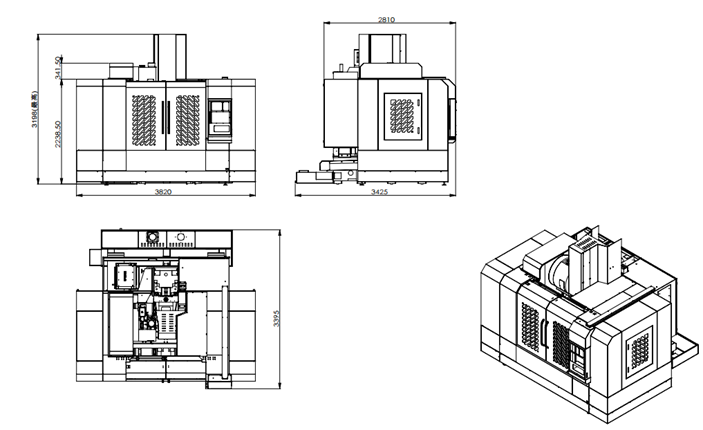
Vertical Line Rail Machining Center; SD-V1570


1、 List of Main Machine Configuration (Unit: mm)
Regulations; Grid; Speak; bright
quantity
Origin
Mitsubishi System (M80)
full set
Japan
Use Taiwan Shangyin/Intime for XYZ axis; Precision Ball Linear Guide (XYZ45)
full set
Taiwan
Use Taiwan Shangyin/Intime for XYZ axis; Precision grinding ball screw (XYZ4012)
full set
Taiwan
Taiwan Ruiying Direct Connection Short Nose Spindle BT40/155/12000rpm
1 unit
Taiwan
24 bit disc cutter library (Yitai)
1 set
Taiwan
Z-axis counterweight selection: nitrogen counterweight
1 set
Dongguan
Cast iron bed body (HT300)
1 set
self-control
Cast iron mechanical parts (HT300)
1 batch
self-control
Distribution cabinet constant temperature air conditioning system (Red)
1 set
Dongguan
Schneider Electrical Accessories (Schneider)
1 batch
Tianjin
Pneumatic components (Yadeke)
1 batch
Taiwan
Imported SKF (SKF) bearings from Sweden
full set
Japan
Spindle water cooler (Reid)
1 unit
Dongguan
Electronic handwheel (Dongce)
1 set
Guangzhou
Knife alignment instrument
1 unit
self-control
XYZ axis with expandable steel plate cover
1 set each
self-control
X/Y/Z axis plastic drag chain (Dingtai)
1 set each
Dongguan
Automatic lubrication oil pump (Proton)
1 set
Dongguan
Air filter (Japanese Lehman M107-A air filter)
1 set
Zhejiang
Water spray device
2 sets
self-control
Water pump 750W
1 set
Changzhou
Machine tool accessories
1 set
Shenzhen
BT40 Knife Handle/Complete Set of Reduced Nipple (Three in One)
5
Shenzhen
Chain plate slag discharge machine (can be added separately)
nothing
self-control
Four axis turntable (optional)
nothing
Taiwan
2、 Technical specification parameter table: (unit: mm)
model
SD-V1570
Workbench size
1600 * 700; (18T * 5 * 125)
Spindle nose end to workbench
Maximum 850 to minimum 150
X-axis travel
one thousand and five hundred
Travel Y-axis
seven hundred
Z-axis travel
seven hundred
X/Y/Z fastest movement speed
X36 meters/minute
Y36 meters/minute
Z36 meters/minute
Maximum processing speed
12 meters per minute
servo system
AC servo
System resolution
zero point zero zero one
Three axis verticality
0.015mm
Whole machine positioning accuracy
&Plusmn; 0.01mm
Localization accuracy
Within 300± 0.008mm
Repetitive positioning accuracy
0.005mm
Number of spindles
1 unit
Spindle servo power
11KW
Spindle servo torque
52.5Nm
Spindle speed
12000 rpm/min
Disk cutter magazine
24 bit
Knife changing method
automatic
Clamping tool handle
BT40
Knife alignment method
automatic
The countertop bears a load
1100Kg
Rated voltage
380V/50HZ
Maximum power of the entire machine
18KW
Overall weight
About 6500kg
External dimensions (length * width * height)
About 3820 * 3425 * 3200
&Nbsp;
Standard configuration and accessories for the host:
one
Controller;
eleven
1 mechanical, electrical, and operation manual
two
Directly connected spindle BT40-155-12000
twelve
Rigid tapping function
three
Automatic lubrication system
thirteen
Electrical box air conditioning
four
Adjustable foundation cushion block
fourteen
Operation Manual, Program Manual, and User Manual
five
Toolbox
fifteen
5 BT40 blade heads (including rivets and wrenches)
six
Work lights
sixteen
BT40 locking tool holder
seven
Warning lights
seventeen
&Nbsp; M16 Ma Tie
eight
Spindle blowing device
eighteen
One 6-inch screwdriver
nine
Transmission line
nineteen
Lock Mouth; ER32 (4-20) 1 set
ten
Fully enclosed cover
twenty
Shield
&Nbsp;
Machine environment and hardware facility requirements;
Number
Environmental projects
Project Requirements Standards
one
Power requirements
AC380V (4P) 50-60Hz, air switch 100A, power supply voltage fluctuation range 380V± Within 10%
two
Air compressor
Using screw compressor, air storage tank, three-stage filtration,≥ 0.55Mpa, flow rate≥ 100L/min
three
Vacuum pressure
&Ge; 0.6 MPa
four
Air dryer
Must have an air dryer with automatic drainage function
five
Environmental noise/vibration
&Le; 75dba
six
Ground requirements
The ground is required to be flat, stable, and the difference between the highest and lowest points should not exceed 5mm

7. 8
Environmental humidity
Suggest 45% -65%
Gas moisture content
No moisture